Woodfield Lane, Renhold
Overview
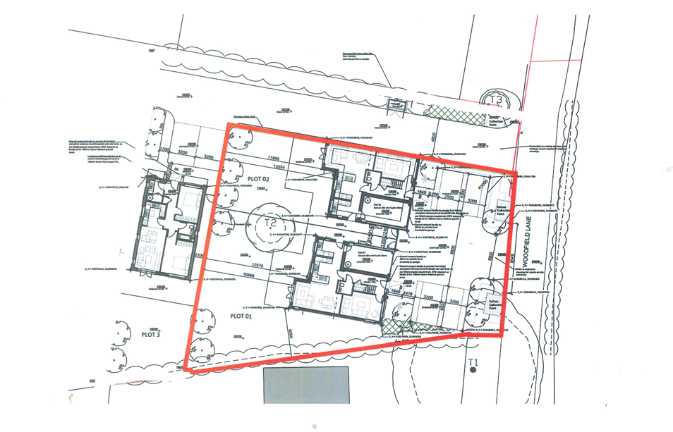
- IDEAL OPPORTUNITY FOR DEVELOPERS OR SELF-BUILD PROJECTS
- DETAILED PLANNING CONSENT
- ATTRACTIVE QUIET LANE LOCATION
- MAINS SERVICES CONNECTED
- EXCELLENT TRANSPORT LINKS
Find out your home's value
For an up-to-date market appraisal of your property, request a valuation now.
Description
***READY TO GO DEVELOPMENT OPPORTUNITY HAVING DETAILED CONSENT FOR DEMOLITION OF EXISTING SEMI-DETACHED BUNGALOWS AND ERECTION OF TWO DETACHED HOUSES***
Estate Agents Renhold





