The Grove, Houghton Conquest, MK45
Floorplans
Click to View (1)Overview
- GUIDE PRICE £350,000
- CONSENTED BUILDING PLOT MEASURING c.0.143 ACRES
- NON-ESTATE LOCATION
- PLANNING FOR AN INDIVIDUAL 4 BEDROOM DETACHED HOUSE (c.2,216 sq ft GIA) with 2 EN-SUITES & DOUBLE GARAGE
- DETAILED PLANNING PERMISSION ISSUED 13th APRIL 2026 - CB/25/03090/FULL
- NO CIL REQUIREMENT (Central Beds yet to implement the legislation)
- DESIRABLE VILLAGE LOCATION
- MAIN SERVICES CONNECTED TO PLOT
- LOCATED WITHIN 2.5 MILES FROM THE PROPOSED UNIVERSAL THEME PARK
- RARE OPPORTUNITY - IDEAL FOR A SELF-BUILDER or DEVELOPER
Find out your home's value
For an up-to-date market appraisal of your property, request a valuation now.
Description
Consented Building Plot at Rear of 45 The Grove, Houghton Conquest, Beds MK45 3JUConsented Building Plot at Rear of 45 The Grove, Houghton Conquest, Beds MK45 3JU
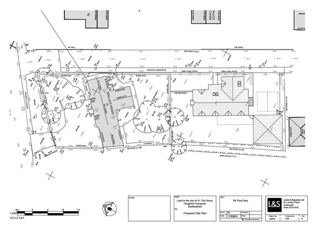
Plot extending to c.0.143 acres in a non-estate location, having consent for the erection of an individual 4 bedroom detached house (c. 2,216 ft2 GIA) with 2 en-suites and double garage.
SUMMARY:
Ø Infill plot of c0.143 acres between the rear of 41 The Grove and 45 The Grove, in a non-estate location, overlooking allotments.
Ø Plot access will be from the private drive adjacent to 45 The Grove.
Ø The plot has detailed planning consent for an individual, 4 bed detached house (with 2 en-suites) extending to 2,216 ft2 GIA.
Ø Services and foul drainage already connected to the plot.
Ø Located within 2.5 miles from the proposed Universal Theme Park
Ø Rare opportunity, Ideal for Self – Builder or Developer.
LOCATION:
The plot is fronting on to a private drive off The Grove on the south west edge of the desirable village of Houghton Conquest. Houghton Conquest is five miles south of Bedford town centre and adjacent to the A6 trunk road linking Bedford and Luton. It is also conveniently situated for access to the A421 dual carriageway linking the A1 and M1 motorways. Houghton Conquest is 14 miles to the east of Milton Keynes and 25 miles to the west of Cambridge. Bedford main line railway station has fast, frequent trains to London St Pancras International.
PLANNING:
Ø Detailed Planning Permission ref CB/25/03090/FULL dated 13th April 2026, was granted for the erection of a two-storey detached dwelling with a detached double garage
Ø There will be no CIL requirement on this plot as Central Beds have yet to implement the legislation.
Ø A BNG (Biodiversity Net Gain) payment of £6,000 to Central Beds Council, will be required. We believe that current policy may be changing, this may result in no payment being required.
BOUNDARY FENCES /HEDGING:
The plot is defined on all four sides by existing fencing / hedging.
SERVICES:
Mains water, electricity, broadband and foul drainage are connected to the plot. A surface water drain is located adjacent to the plot, for future connection.
TENURE:
The plot is to be sold Freehold.
TERMS: Guide Price £350,000
CONDITIONS OF SALE:
1) The purchaser is to exchange conditional contracts within 30 working days from when their solicitors receive draft contract documentation.
2) Legal completion to take place within 20 working days from receipt of planning permission.
DISCLAIMER :
Compass Land & Development for themselves, and for the vendors of the land, whose agents they are, give notice that; (A) These particulars are produced in good faith, but are set out as a general guide only and do not constitute any part of a contract; (B) No person in the employment of Compass Land and Development has any authority to make or give any representation or warranty what so ever to the land April 2026. These details are presented subject to Contract and without prejudice.
Estate Agents Bedford












