‹ Back to Developments: Royal Gardens
Royal Gardens, Wixams
Overview
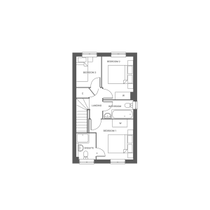
- 815 SQ FEET
- 2 PARKING SPACES
- ENERGY EFFICIENT HOME - SAVE ON YOUR ENERGY BILLS
- INTEGRATED APPLIANCES
- SOLAR PANELS INSTALLED
- EV CAR CHARGER INSTALLED
- KITCHEN/DINER WITH FRENCH PATIO DOORS
- ABBEY SAVING SOLUTION - CALL TO FIND OUT MORE INFORMATION
- PERFECT FOR FIRST TIME BUYERS OR INVESTORS
- FLOORING & TURF PACKAGE AVAILABLE (T&C'S APPLY)
Find out your home's value
For an up-to-date market appraisal of your property, request a valuation now.
Description
*** SAVE MORE, STRESS LESS WITH THE ABBEY SAVING SOLUTION SCHEME (T&C'S APPLY) *** THREE BEDROOM HOME WITH KITCHEN/DINER INCLUDING KITCHEN APPLIANCES, DRIVEWAY & PRIVATE REAR GARDEN!! ***
Estate Agents WixamsSimilar Properties
Oak Grove, Cambridge Road, Biggleswade
£390,000 OIROBiggleswade, SG18 8SU*** 3 BED SEMI DETACHED WITH PARKING - READY FOR OCCUPATION*** A 3 bedroom semi detached home offering thoughtfully designed modern living spaces throughout.3 Bedrooms1 Bathroom1 ReceptionRoxton Road, Bedford
£425,000 Guide PriceBedford , MK44 3JF**PLOT 2 BLACKBERRY CLOSE - NOW AVAILABLE - STUNNING 3 BEDROOM SEMI-DETACHED HOME WITH SINGLE GARAGE LOCATED IN THE HEART OF GREAT BARFORD** A spacious and thoughtfully arranged 3 bedroom family home with versatile living, oversized garage and generous rear garden – ideally located in the soug...3 Bedrooms1 Bathroom1 Reception












