This property is not currently available. It may be sold or temporarily removed from the market.
‹ Back to Developments: Royal Gardens
Royal Gardens, Wixams
Overview
- *** BLACK FRIDAY EVENT - RESERVE YOUR HOME FOR AS LITTLE AS £99 AND BENEFIT FROM HUGE SAVINGS (T&CS APPLY) ***
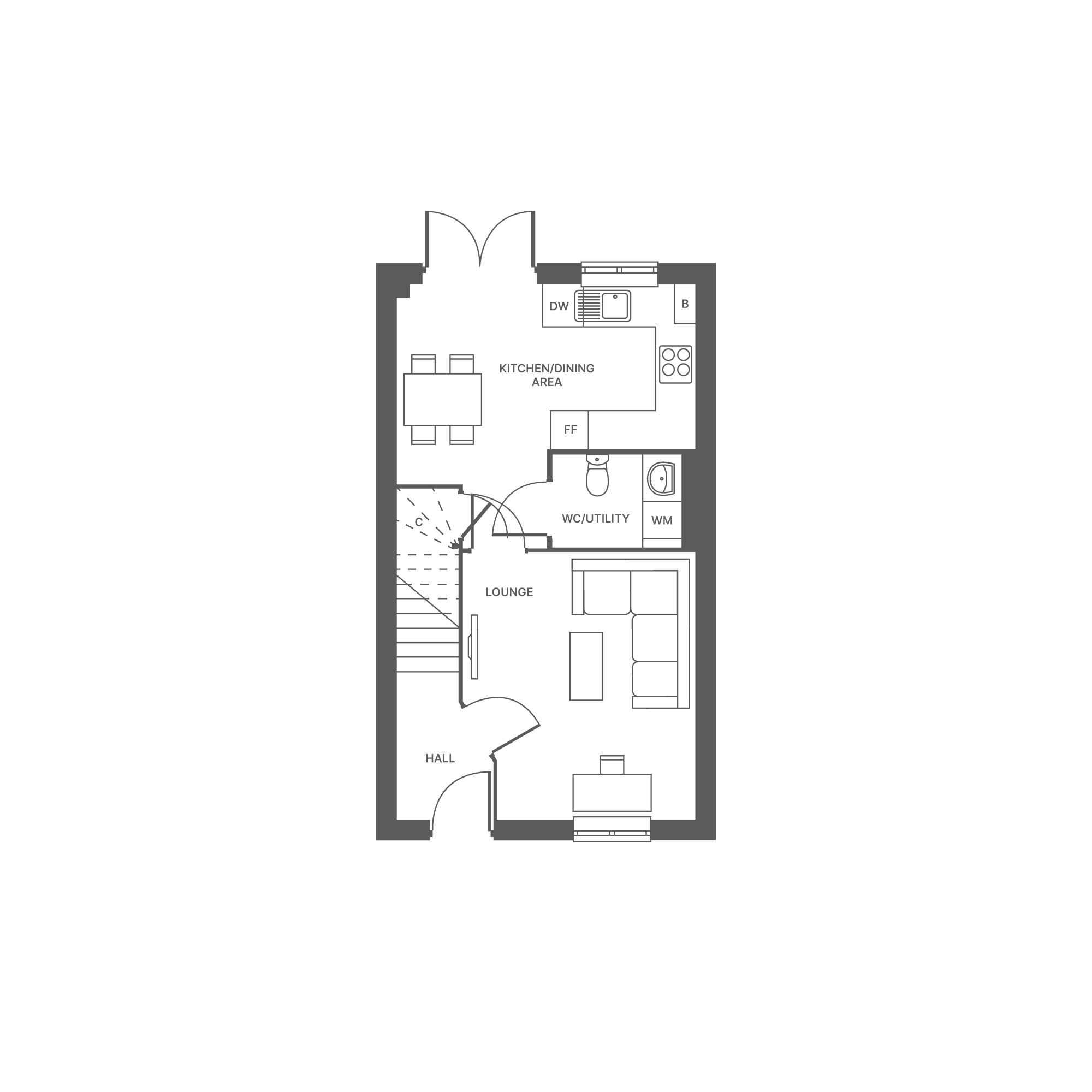
- THREE BEDROOM HOME
- WC/UTILITY
- 1143 SQ FOOT
- MASTER BEDROOM WITH DRESSING AREA & EN-SUITE
- SEPARATE LIVING ROOM
- 10 YEAR NHBC WARRANTY & 2 YEARS ABBEY HOMES CUSTOMER CARE
- EXCELLENT ACCESS TO A421, A1, A6 & M1
- KITCHEN/DINER WITH INTEGRATED APPLIANCES
- *** OPEN HOUSE EVENT SATURDAY 25th & SUNDAY 26th OCTOBER – FURTHER INFORMATION BELOW ON HOW TO BOOK YOUR VIEWING ***
- *** 5% GIFTED DEPOSIT, FLOORING & TURF PACKAGE FOR RESERVATIONS THROUGHOUT NOVEMBER (T&C'S APPLY) ***
Find out your home's value
For an up-to-date market appraisal of your property, request a valuation now.
Description
*** BLACK FRIDAY EVENT - RESERVE YOUR HOME FOR AS LITTLE AS £99 AND BENEFIT FROM HUGE SAVINGS (T&CS APPLY) *** 5% GIFTED DEPOSIT, FLOORING & TURF PACKAGE FOR RESERVATIONS THROUGHOUT NOVEMBER (T&C'S APPLY) *** *** THREE BEDROOM HOME WITH KITCHEN/DINER INCLUDING KITCHEN APPLIANCES, SEPARATE LIVING AREA, MASTER BED WITH EN-SUITE & DRESSING AREA ON THE SECOND FLOOR AND PARKING FOR TWO CARS ***
Estate Agents WixamsSimilar Properties
The Thespian, Bedford
£385,000Bedford, MK42 0XUThis beautifully designed, brand new three-bedroom home is located in the sought-after New Cardington development. Offering a perfect balance of style, comfort, and practicality, it provides modern living spaces ideal for families and professionals alike.3 Bedrooms2 Bathrooms1 ReceptionSandy Road, Bedfordshire
£400,000Bedfordshire, MK43 3QPReserve Home 41 before November 30th and benefit from a £15,000 Deposit Contribution (T&Cs Apply)3 Bedrooms2 Bathrooms1 Reception















