‹ Back to Developments: Royal Gardens
Royal Gardens, Wixams
Property Type
End of Terrace House
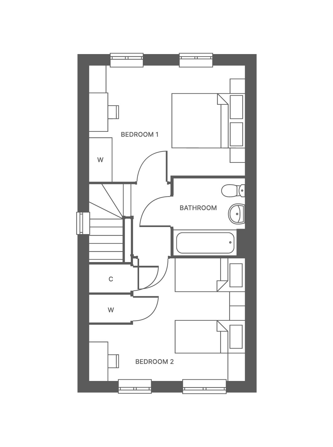
Beds
x 2
Baths
x 1
Tenure
Freehold
Floorplans
Click to View (2)
For Sale
Overview
- END OF TERRACE HOME
- KITCHEN WITH INTEGRATED APPLIANCES
- PARKING FOR 2 VEHICLES
- LARGE TWO DOUBLE BEDROOM HOME
- ENERGY EFFICIENT HOME - SAVE ON YOUR ENERGY BILLS
- SOLAR PANELS
- EV CAR CHARGER INSTALLED
- PERFECT FOR A FIRST TIME BUYER, INVESTOR OR DOWNSIZERS
- SOUTH FACING GARDEN
- 2 YEARS BUILDERS WARRANTY & 10 YEAR NHBC WARRANTY
Find out your home's value
For an up-to-date market appraisal of your property, request a valuation now.
Description
*** SOUTH FACING GARDEN *** TAILORED INCENTIVES AVAILABLE USING ABBEYS SAVING SOLUTION - HELPNG YOU BUY YOUR DREAM HOME *** 2 DOUBLE BEDROOM SEMI DETACHED HOUSE WITH KITCHEN APPLIANCES, PRIVATE DRIVEWAY & PRIVATE REAR GARDEN ***
Estate Agents WixamsSimilar Properties
Royal Gardens, Wixams
£265,000Wixams, MK45 3RN*** SAVE MORE, STRESS LESS WITH ABBEY SAVING SOLUTIONS (T&C'S APPLY) *** 2 DOUBLE BEDROOM MAISONETTE WITH KITCHEN/DINER/LIVING AREA INCLUDING KITCHEN APPLIANCES AND TWO PARKING SPACES ***2 Bedrooms2 Bathrooms1 ReceptionRoyal Gardens, Fisherwood Road, Bedford
£300,000Bedford, MK45 3RN*** TAILORED INCENTIVES AVAILABLE USING ABBEYS SAVING SOLUTION - HELPNG YOU BUY YOUR DREAM HOME *** 2 BEDROOM COACH HOUSE WITH KITCHEN/DINER/LIVING AREA INCLUDING KITCHEN APPLIANCES AND TWO ALLOCATED PARKING SPACES ***2 Bedrooms2 Bathrooms1 Reception











