‹ Back to Developments: Fuller Way, Wootton
Fuller Way, Wootton, MK43
Overview
- ***£17,500 STAMP DUTY TO BE PAID BY BLAKENEY ESTATES***
- PLOT 15 FULLER WAY - READY TO MOVE INTO WITH NO UPWARD CHAIN
- 4 BEDROOM DETACHED FAMILY HOME
- SINGLE GARAGE & DRIVEWAY
- OPEN PLAN KITCHEN / DINING ROOM
- HIGHLY SPECIFIED SHAKER STYLE FITTED KITCHEN
- UNDERFLOOR HEATING TO GROUND FLOOR
- STYLISH FAMILY BATHROOM & EN-SUITES
- SOLAR PANELS FOR ENHANCED EFFICIENCY & LONG-TERM SAVINGS
- 10 YEAR ICW STRUCTURAL WARRANTY
Find out your home's value
For an up-to-date market appraisal of your property, request a valuation now.
Description
A STUNNING 4 BEDROOM DETACHED FAMILY HOME WITH GARAGE AND PARKING situated on a rural development of just 20 spacious new homes, with outstanding countryside views. ***Compass Elevation are delighted to bring to market this spacious and thoughtfully arranged 4-bedroom family home with modern living, garage, situated on a south facing plot – ideally located in the sought-after village of Wootton, Bedfordshire.***£17,500 STAMP DUTY TO BE PAID BY BLAKENEY ESTATES***
*** A STUNNING 4 BEDROOM DETACHED FAMILY HOME WITH GARAGE AND PARKING situated on a rural development of just 20 spacious new homes, with outstanding countryside views. ***
Compass Elevation are delighted to bring to market this spacious and thoughtfully arranged 4-bedroom family home with modern living, garage, overlooking beautiful countryside – ideally located in the sought-after village of Wootton, Bedfordshire.
ACCOMMODATION:
This family home is finished to an exceptional standard offering approx. 1,400 sq. ft. of modern living space.
The ground floor welcomes you with an entrance hall and cloakroom. The expansive kitchen/diner stretches the entire width of the home and has been finished to the highest of standards including fitted appliances. The room also features patio doors opening onto the garden, creating the perfect space for entertaining. A generous living room is positioned to the front of the property.
Upstairs, a central landing leads to three bedrooms. Bedroom two benefits from a en-suite whilst bedrooms 3 & 4 share a high specification family bathroom.
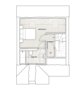
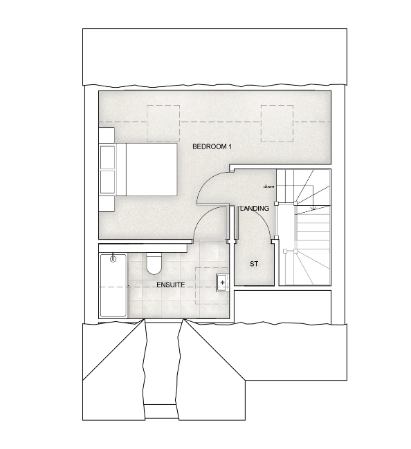
The top floor of this impressive family home benefits a executive master bedroom with a high quality en-suite.
Externally the property benefits from a garage, a charcoal grey Keyblock driveway, landscaped frontage and rear garden laid to turf. Additional features include gated access with feather edge fencing, an external tap, anthracite grey uPVC windows, and a contemporary composite front door.
ABOUT THE DEVELOPER:
Blakeney Homes is a privately owned property development company based in Bedfordshire.
Specialising in the residential market, Blakeney have been constructing new homes for over twenty years and have forged an excellent reputation for outstanding design and high quality build throughout their exclusive developments.
Blakeney control every stage of the planning, design and construction process, using both traditional methods & new technology to produce comfortable and desirable homes.
KEY HIGHLIGHTS INCLUDE:
• Four bedroom detached family home with garage, landscaped frontage and rear garden and keyblock charcoal grey driveway
• Halesworth Dove Grey shaker-style kitchen
• Underfloor heating throughout the ground floor, and radiators on upper levels with zoned controls
• Stylish family bathroom and two en-suites with porcelain tiled floors (specific to this house type)
• Amtico Spacia Peak flooring to kitchen, hallway, and WC; plush Heather Twist Supreme carpets with underlay to lounge, study and all upper floors
• Composite black/anthracite grey front door and uPVC double-glazed windows in anthracite grey/white
• Oak newel posts and handrails; V-groove skirting and architraves finished in satin wood
• Satin chrome downlights and brushed chrome power sockets throughout; combination of pendant and downlighting per electrical plan
• Feather edge fencing and timber gate to private rear boundaries
• External garden tap and black half-round gutters with matching fall pipes
• Traditionally constructed using Vandersanden Corum brick with insulated cavity, concrete ground floors and Redland Duoplain tiled roof in rustic red
• Mains services connected: water, electricity, telecoms, and drainage
• 10-Year ICW structural warranty
• Freehold tenure
LOCATION:
Nestled on the edge of the Bedfordshire countryside, Wootton offers a perfect balance of rural tranquillity and modern convenience. Just a short drive from Bedford town centre and with excellent road links via the A421, A6, and M1, the village is a popular choice for families and commuters alike.
Wootton is well served by local amenities including shops, pubs, schools and recreational facilities. The development is ideally positioned to enjoy scenic walks, strong community spirit and access to nearby green spaces while remaining within easy reach of major transport routes and Bedford town centre.
Disclaimer - All images shown are from similar house types and are for illustrative purposes only. They may include optional upgrades, furnishings, landscaping, and finishes that do not form part of the standard specification. Layouts, specifications, and materials may vary depending on plot and construction stage. Please speak to the sales team for full details of individual plots and specifications.
Estate Agents BedfordSimilar Properties
Taylor Close, Shortstown, MK42
£480,000Bedford, MK42 0WYStunning four bed detached home in New Cardington. Ensuite to master, kitchen/diner, utility, parking, enclosed garden. Close to shops, schools, and transport links.4 BedroomsFuller Way, Wootton, MK43
£649,995Wootton, MK43 9HR** PREDICTED EPC RATING A - SAVING YOU ON YOUR ENERGY BILLS ** PART EXCHANGE CONSIDERED SUBJECT TO T&C's ** PLOT 18 ‘THE CHARLBURY’ FULLER WAY, WOOTTON** **SPACIOUS 4 BEDROOM LINK-DETACHED FAMILY HOME WITH SINGLE GARAGE situated on a rural development of just 20 spacious new homes, with outs...4 Bedrooms3 Bathrooms1 Reception























