‹ Back to Developments: Fuller Way, Wootton
Fuller Way, Wootton
Overview
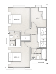
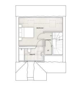
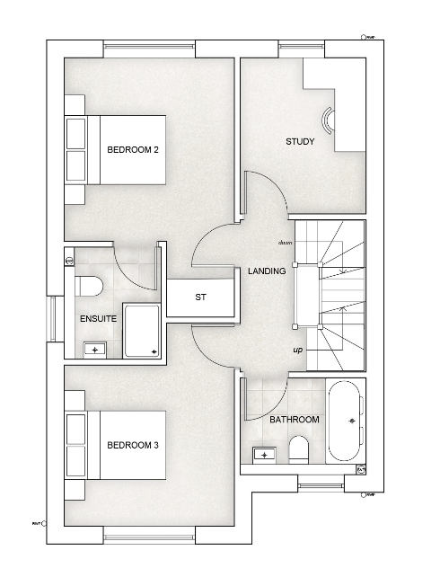
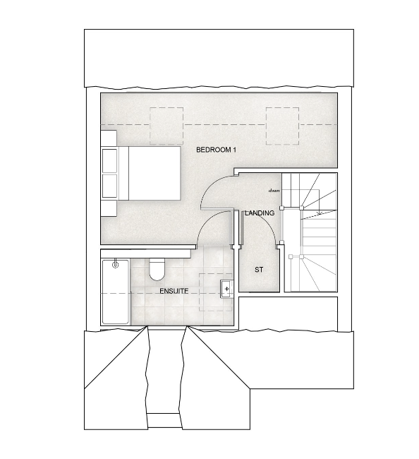
- 4 BEDROOM DETACHED FAMILY HOME
- SINGLE GARAGE & DRIVEWAY
- OPEN PLAN KITCHEN / DINING ROOM
- HIGHLY SPECIFIED SHAKER STYLE FITTED KITCHEN
- UNDERFLOOR HEATING TO GROUND FLOOR
- STYLISH FAMILY BATHROOM & EN-SUITES
- SOLAR PANELS FOR ENHANCED EFFICIENCY & LONG-TERM SAVINGS
- ANTHRACITE GREY uPVC DOUBLE GLAZED WINDOWS
- 10 YEAR ICW STRUCTURAL WARRANTY
- TURFED REAR GARDEN WITH PATIO AREA
Find out your home's value
For an up-to-date market appraisal of your property, request a valuation now.
Description
*** A STUNNING 4 BEDROOM DETACHED FAMILY HOME WITH A SOUTH FACING GARDEN AND GARAGE situated on a rural development of just 20 spacious new homes, with outstanding countryside views. ***
Compass Elevation are delighted to bring to market this spacious and thoughtfully arranged 4-bedroom family home with modern living, garage, situated on a south facing plot – ideally located in the sought-after village of Wootton, Bedfordshire.
Estate Agents WoottonSimilar Properties
Sandy Road, Bedfordshire
£590,000Bedfordshire, MK43 3QPReserve Home 12 before 30th November and enjoy an incredible package of incentives: a £15,000 Stamp Duty contribution, a £5,000 John Lewis voucher, and a home upgrade bundle worth over £12,000—including a quartz worktop, full flooring throughout, rear garden turf, enhanced la...4 Bedrooms2 Bathrooms2 ReceptionsOak Grove, Cambridge Road, Biggleswade
£495,000Biggleswade, SG18 8SU*** READY TO MOVE INTO WITH NO UPWARD CHAIN *** A detached four-bedroom home offering thoughtfully designed modern living spaces throughout.4 Bedrooms2 Bathrooms1 Reception














