‹ Back to Developments: Fuller Way, Wootton
Fuller Way, Wootton
Overview
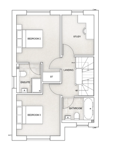
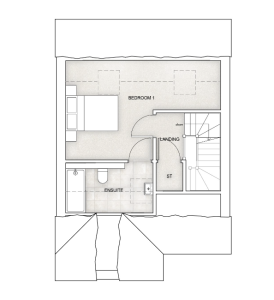
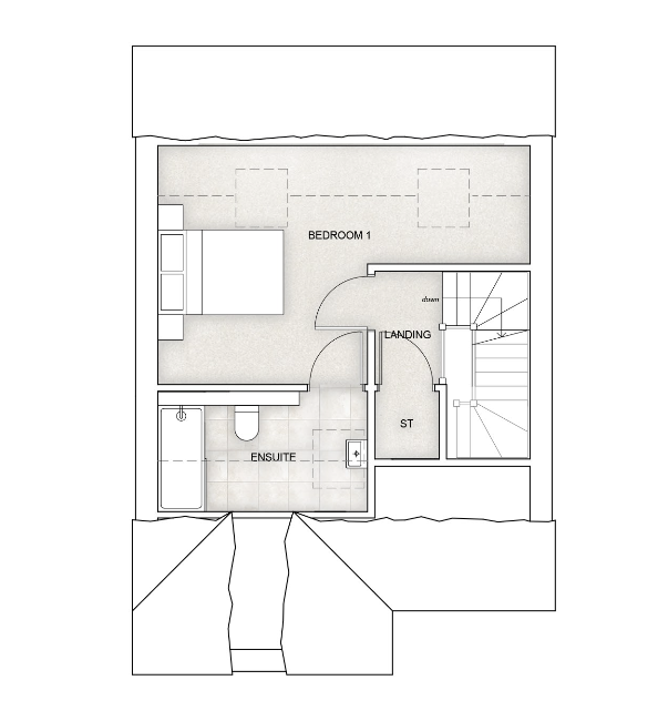
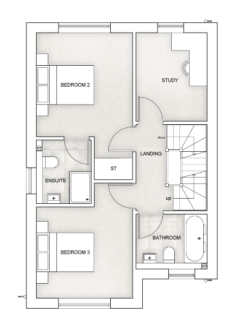
- 4 BEDROOM DETACHED FAMILY HOME
- SINGLE GARAGE & DRIVEWAY
- OPEN PLAN KITCHEN / DINING ROOM
- HIGHLY SPECIFIED SHAKER STYLE FITTED KITCHEN
- UNDERFLOOR HEATING TO GROUND FLOOR
- STYLISH FAMILY BATHROOM & EN-SUITES
- SOLAR PANELS FOR ENHANCED EFFICIENCY & LONG-TERM SAVINGS
- ANTHRACITE GREY uPVC DOUBLE GLAZED WINDOWS
- 10 YEAR ICW STRUCTURAL WARRANTY
- TURFED REAR GARDEN WITH PATIO AREA
Find out your home's value
For an up-to-date market appraisal of your property, request a valuation now.
Description
*** A STUNNING 4 BEDROOM DETACHED FAMILY HOME WITH A SOUTH FACING GARDEN AND GARAGE situated on a rural development of just 20 spacious new homes, with outstanding countryside views. ***
Compass Elevation are delighted to bring to market this spacious and thoughtfully arranged 4-bedroom family home with modern living, garage, situated on a south facing plot – ideally located in the sought-after village of Wootton, Bedfordshire.
Estate Agents WoottonSimilar Properties
Fuller Way, Bedford
£649,995Bedford, MK43 9HR**PLOT 18 ‘THE CHARLBURY’ FULLER WAY, WOOTTON** **SPACIOUS 4 BEDROOM LINK-DETACHED FAMILY HOME WITH SINGLE GARAGE situated on a rural development of just 20 spacious new homes, with outstanding countryside views** Compass Elevation are pleased to offer this spacious and thoughtfully arra...4 Bedrooms3 Bathrooms1 ReceptionThe Grange, Mulberry Homes
£495,000Mulberry Homes, MK44 3DR***The Yardley – Stylish Four Bedroom Detached Home with Modern Open-Plan Living*** The Yardley is a thoughtfully designed four-bedroom detached home that perfectly balances contemporary style with practical family living. Featuring a spacious, light-filled layout and versatile living areas, t...4 Bedrooms2 Bathrooms2 Receptions



















